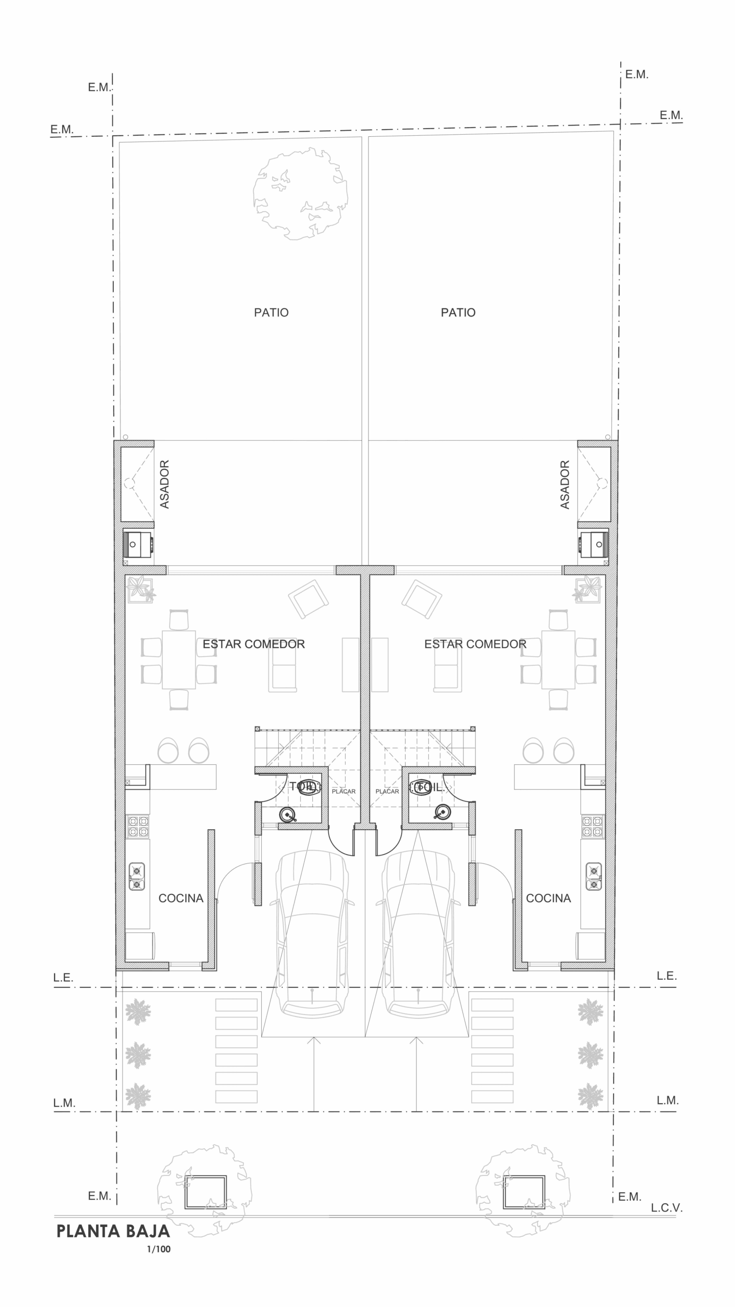
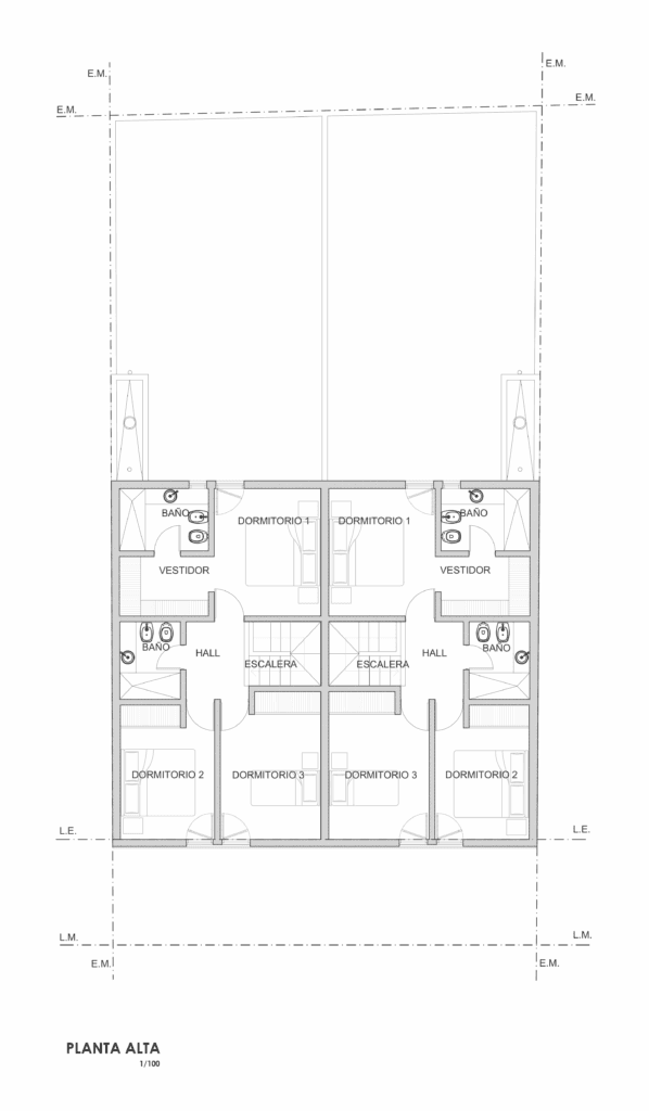
Casa Sauce

  • 140 m2 tot. 140 m2 tot.
  • 125 m2 cub. 125 m2 cub.
  • 5 ambientes 5 ambientes
  • 2 plantas 2 plantas
  • 3 baños 3 baños
  • 3 dormitorios 3 dormitorios
01 / SOBRE Casa Sauce

Casa Sauce es un hogar pensado para la vida cotidiana: cómodo, funcional y lleno de luz. Su diseño moderno aprovecha cada metro con inteligencia, integrando cocina, comedor y living en un espacio amplio y práctico. Las aberturas conectan el interior con el patio, invitando a disfrutar del aire libre. Ideal para quienes buscan calidad, tranquilidad y un estilo simple pero bien cuidado. Un lugar para vivir bien, todos los días.

  • 140 m2 tot. 140 m2 tot.
  • 125 m2 cub. 125 m2 cub.
  • 5 ambientes 5 ambientes
  • 2 plantas 2 plantas
  • 3 baños 3 baños
  • 3 dormitorios 3 dormitorios
  • Galería Galería
  • Patio Patio
02 / RECORRIDO VIRTUAL

Casa Sauce

  • 140 m2 tot. 140 m2 tot.
  • 125 m2 cub. 125 m2 cub.
  • 5 ambientes 5 ambientes
  • 2 plantas 2 plantas
  • 3 baños 3 baños
  • 3 dormitorios 3 dormitorios

03 / UNIDADES DISPONIBLES

Conoce nuestras opciones disponibles y elegí la que mejor se adapta a tu estilo de vida o proyecto de inversión.

04 / TODOS LOS DETALLES

Diseño y terminaciones de calidad

  • Paredes interiores

    La terminación en paredes se realizó con revoque grueso y enlucido de yeso.

  • Paredes exteriores

    Terminación con revoque fino.

  • Pisos

    Pisos cerámicos y porcelanatos en interiores. Losetas lisas y crivadas en exterior.

  • Techos

    El interior de la casa cuenta con cielorraso suspendido de placas de yeso.

  • Terminación fachada

    Con placas de hormigón visto y ladrillo cribado.

  • Carpinterías y vidrios

    Aberturas de aluminio Línea Módena - Línea A30 New con tratamiento en Pintura Negro y Cristal DVH Float Incoloro

  • Estructura y muros

    Su vivienda cuenta con una estructura de hormigón armado y muros de ladrillo cerámico portante.

  • Instalaciones

    Las Instalaciones se encuentran suspendidas y cubiertas por cielorraso y espacios técnicos verticales.

05 / UN SISTEMA CONSTRUCTIVO DE CALIDAD

Soldados

Pisos de primera calidad, durables y fáciles de mantener, que combinan diseño y funcionalidad para cada ambiente del hogar.

Muebles y mesada

MESADA GRANITO NEGRO. Alacenas con fondo y muebles de baño de materiales MDF

Sanitarios y griferías

Elementos de marcas reconocidas, que garantizan eficiencia, estética y durabilidad en cada espacio de baño y cocina.

Artefactos de iluminación

Propuestas lumínicas seleccionadas para realzar cada ambiente, combinando diseño y funcionalidad