Casa Roble

  • 150 m2 tot. 150 m2 tot.
  • 114 m2 cub. 114 m2 cub.
  • 5 ambientes 5 ambientes
  • 2 plantas 2 plantas
  • 3 baños 3 baños
  • 3 dormitorios 3 dormitorios
01 / SOBRE Casa Roble

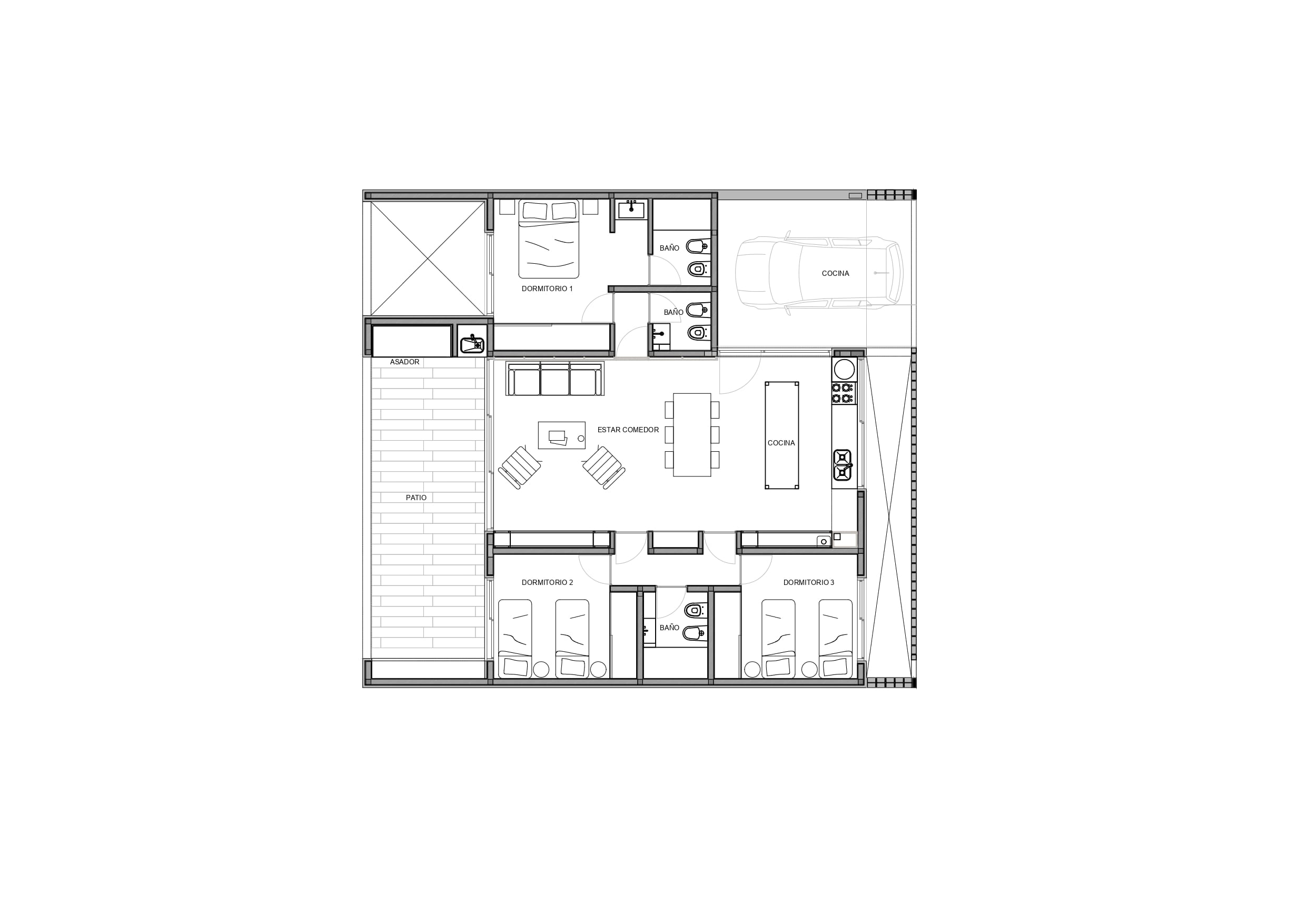
Esta vivienda de diseño contemporáneo y construcción tradicional se desarrolla en una sola planta, integrando funcionalidad, estética y confort. Cuenta con dormitorios con amplios placares, tres baños (uno en suite), cocina equipada, living-comedor luminoso y patio con asador. La galería, con pérgola metálica y techo impermeable, conecta fluidamente con el exterior. Detalles de hormigón visto, muros de ladrillo cribado, aberturas DVH y terminaciones de alta calidad realzan su propuesta arquitectónica.

  • 150 m2 tot. 150 m2 tot.
  • 114 m2 cub. 114 m2 cub.
  • 5 ambientes 5 ambientes
  • 2 plantas 2 plantas
  • 3 baños 3 baños
  • 3 dormitorios 3 dormitorios
  • Galería Galería
  • Cochera Cochera
  • Patio Patio
02 / RECORRIDO VIRTUAL

Casa Roble

  • 150 m2 tot. 150 m2 tot.
  • 114 m2 cub. 114 m2 cub.
  • 5 ambientes 5 ambientes
  • 2 plantas 2 plantas
  • 3 baños 3 baños
  • 3 dormitorios 3 dormitorios

03 / UNIDADES DISPONIBLES

Conoce nuestras opciones disponibles y elegí la que mejor se adapta a tu estilo de vida o proyecto de inversión.

04 / TODOS LOS DETALLES

Diseño y terminaciones de calidad

  • Pisos

    Pisos cerámicos y porcelanatos en interiores. Baldosas crivadas cerámicos en exterior.

  • Mesadas de mármol Negro Brasil Leather

    En baños y cocina, aportan elegancia y durabilidad.

  • Artefactos sanitarios Roca

    Inodoro, bidet y bacha sobremesada en color blanco.

  • Griferías Peirano

    De primera calidad en baño y cocina, garantizan funcionalidad y diseño.

  • Calefacción central

    Caldera dual con termostato de ambiente 220 v.

  • Techos de hormigón visto

    Con luminaria embutida, generan carácter y solidez visual.

  • Aberturas de aluminio DVH

    Línea A30 new, eficiencia térmica y acústica superior.

  • Muros de ladrillo cribado y detalles de hormigón

    Acabados exteriores con personalidad.

PLANTA ALTA
05 / UN SISTEMA CONSTRUCTIVO DE CALIDAD

Pisos cerámicos y porcelanatos en interiores. Baldosas crivadas cerámicos en exterior.

Mesadas Negro Brasil Leather

Aberturas DVH línea A30 new

Muros de ladrillo cribado y hormigón visto