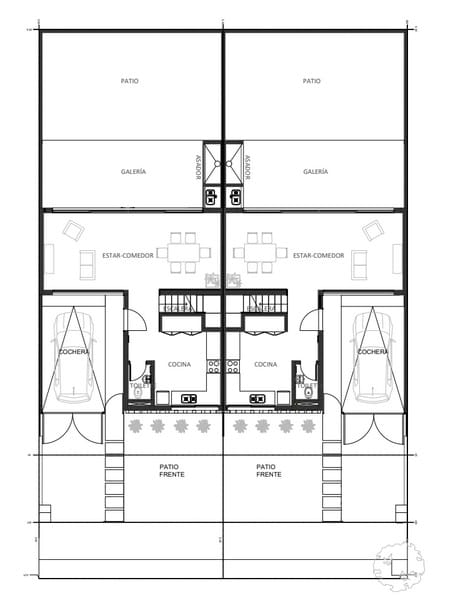
Casa Molle

  • 180 m2 tot. 180 m2 tot.
  • 129 m2 cub. 129 m2 cub.
  • 6 ambientes 6 ambientes
  • 2 plantas 2 plantas
  • 3 baños 3 baños
  • 3 dormitorios 3 dormitorios
01 / SOBRE Casa Molle

Refleja nuestra visión de la perfección al combinar arquitectura moderna con espacios amplios y luminosos, diseñados para brindar una experiencia de vida única.

Combina la arquitectura contemporánea con materiales de excelente calidad para que tu hogar sea único. Su diseño busca el equilibrio entre la privacidad y la conexión con el entorno, ofreciendo espacios amplios, funcionales y llenos de luz natural.

  • 180 m2 tot. 180 m2 tot.
  • 129 m2 cub. 129 m2 cub.
  • 6 ambientes 6 ambientes
  • 2 plantas 2 plantas
  • 3 baños 3 baños
  • 3 dormitorios 3 dormitorios
  • Galería Galería
  • Cochera Cochera
  • Patio Patio
02 / RECORRIDO VIRTUAL

Casa Molle

  • 180 m2 tot. 180 m2 tot.
  • 129 m2 cub. 129 m2 cub.
  • 6 ambientes 6 ambientes
  • 2 plantas 2 plantas
  • 3 baños 3 baños
  • 3 dormitorios 3 dormitorios

03 / UNIDADES DISPONIBLES

Conoce nuestras opciones disponibles y elegí la que mejor se adapta a tu estilo de vida o proyecto de inversión.

04 / TODOS LOS DETALLES

Diseño y terminaciones de calidad

  • Paredes interiores

    La terminación en paredes se realizó con revoque grueso y enlucido de yeso.

  • Paredes exteriores

    Terminación con revoque fino.

  • Pisos

    Pisos cerámicos y porcelanatos en interiores. Baldosas crivadas cerámicos en exterior.

  • Techos

    Estar-Comedor losa vista de hormigón. El interior de la casa restante cuenta con cielorraso suspendido de placas de yeso.

  • Terminación fachada

    Con placas de hormigón visto y ladrillo cribado.

  • Carpinterías y vidrios

    Carpintería de aluminio Linea moderna 90° y A30 New. Con tratamiento Pintura Negro Semimate. Vidrios float incoloro DVH.

  • Estructura y muros

    Su vivienda cuenta con una estructura de hormigón armado y muros de ladrillo cerámico portante.

  • Instalaciones

    Las Instalaciones se encuentran suspendidas y cubiertas por cielorraso y espacios técnicos verticales.

05 / UN SISTEMA CONSTRUCTIVO DE CALIDAD

Distribución funcional

Espacios amplios y bien iluminados, potenciando la comodidad y la calidez del hogar.

Construcción tradicional

Construcción tradicional con materiales de primera calidad.

Exterior

Espacio exterior con patio para disfrutar y compartir.

Fachada

Fachada de hormigón visto combinado con ladrillo para un diseño sólido y moderno.

Aberturas

Aberturas amplias con DVH garantizando seguridad y conexión con el exterior.