Casa Algarrobo

  • 126 m2 tot. 126 m2 tot.
  • 114 m2 cub. 114 m2 cub.
  • 5 ambientes 5 ambientes
  • 2 plantas 2 plantas
  • 2 baños 2 baños
  • 2 dormitorios 2 dormitorios
01 / SOBRE Casa Algarrobo

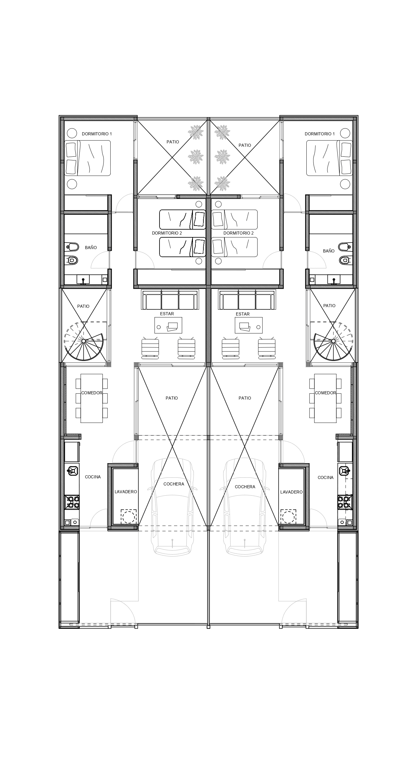
Esta vivienda combina diseño moderno y funcionalidad en La planta baja esta conformada por 2 dormitorios con placares integrados, un baño completo, cocina, comedor y living. El patio con asador y la terraza accesible completan una experiencia de habitar que prioriza la iluminación, el confort térmico y la calidad espacial. Detalles de hormigón visto, muros de ladrillo expuesto y aberturas de aluminio con DVH completan una propuesta arquitectónica de estilo contemporáneo y gran durabilidad.

  • 126 m2 tot. 126 m2 tot.
  • 114 m2 cub. 114 m2 cub.
  • 5 ambientes 5 ambientes
  • 2 plantas 2 plantas
  • 2 baños 2 baños
  • 2 dormitorios 2 dormitorios
  • Galería Galería
  • Cochera Cochera
  • Patio Patio
02 / RECORRIDO VIRTUAL

Casa Algarrobo

  • 126 m2 tot. 126 m2 tot.
  • 114 m2 cub. 114 m2 cub.
  • 5 ambientes 5 ambientes
  • 2 plantas 2 plantas
  • 2 baños 2 baños
  • 2 dormitorios 2 dormitorios

03 / UNIDADES DISPONIBLES

Conoce nuestras opciones disponibles y elegí la que mejor se adapta a tu estilo de vida o proyecto de inversión.

04 / TODOS LOS DETALLES

Diseño y terminaciones de calidad

  • Pisos

    Pisos cerámicos y porcelanatos en interiores. Baldosas crivadas cerámicos en exterior.

  • Mesada de mármol

    Mármol Negro Brasil Leather en baño.

  • Aberturas de aluminio DVH

    Línea A30 new con doble vidrio hermético.

  • Techos de losa de hormigón visto

    Con luminarias embutidas.

  • Muros exteriores de ladrillo visto

    Estética rústica y durabilidad.

  • Placares empotrados

    En ambos dormitorios.

  • Griferías marca Peirano

    En cocina y baño, de primera calidad.

  • Instalación de calefacción central

    Caldera dual con termostato.

05 / UN SISTEMA CONSTRUCTIVO DE CALIDAD

Griferías Peirano

Diseño elegante y alta durabilidad.

Aberturas de aluminio DVH A30 New

Máximo aislamiento térmico y acústico.

Hormigón y ladrillo visto

Estética contemporánea y robusta.